根據蘇州市相城區漕湖菜市場項目招商工作要求,現就本市場商位招商公告如下:
一、項目信息
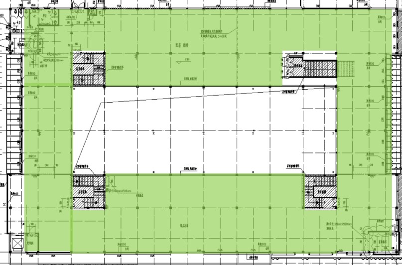
漕湖菜市場項目位于蘇州市相城區漕湖街道黃畦路3號,是由蘇州市相城萬家鄰里市場管理有限公司進行招商管理。本次招商范圍為漕湖菜市場二樓區域,面積約2000㎡。
二、招商業態范圍
菜市場配套業態、社區配套商業、便民服務業態等。
三、招商選位流程
1.提交報名材料
本招商公告發布時間為2023年4月14日至2023年4月28日。意向商戶在公告發布期間向我司提交相關材料(材料清單詳見附件),材料提交地點為漕湖菜市場管理辦公市,(接收工作于每日早9點至晚17點進行,聯系電話15851455586)。
2.資格審核
我司將于公告結束之日起5日內,將意向商戶提交的材料進行審核評審,根據市場招商需求篩選出符合條件的意向商戶。
3.評審通過:
資格審核結果將于2023年5月4日前進行公示,通過資格審核的意向商戶,我司將以電話或短信等形式通知其在指定時間內繳納選位保證金后,意向商戶獲得選位資格。
4.競租選位:
我司將組織獲得選位資格的意向商戶通過競價或商業談判的形式參加選位。
5.簽約交款:
選位成功的意向商戶應在指定時間內與我司簽約,繳納租金。對于沒有選位成功的意向商戶,我司將統一退還選位保證金。
四、招商要求
1.商戶對所經營業態需有成熟的經營經驗,有可視經營成果;
2.商戶遞交的報名材料,需包括經營業態在該區域的分析材料,如客群分析、行業分析、經營預測等;
3.商戶遞交的報名材料,需包括經營方案,經營風險預防方案,主營業務與菜場業態的配套經營方案,為周邊老百姓提供的增值服務方案等。
蘇州市相城萬家鄰里市場管理有限公司
2023年4月13日
附件:

菜市場二樓平面圖
(陰影部分為招商區域)